Vragen of afspraak maken?

Stuur ons een bericht via WhatsApp

Omschrijving

Meer lezen

Kenmerken

Vraagprijs
2.250.000 k.k.
Status
Te koop
Soort woning
Woonboerderij
Bouwjaar
1850
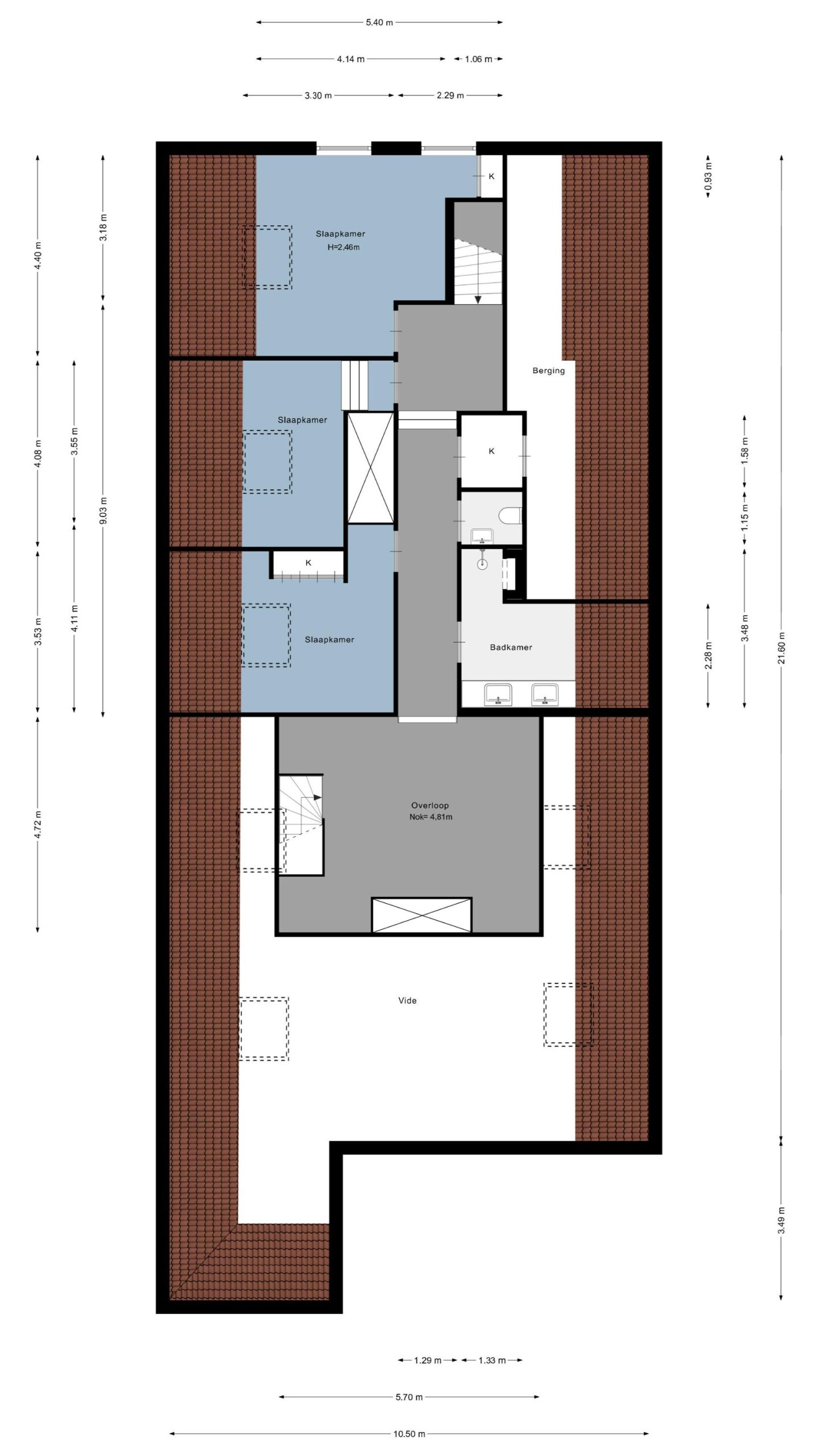
Woonoppervlakte
354 m2
Perceeloppervlakte
10895 m2
Energielabel
A+++
Kamers
6
Slaapkamers
5
Robin Scholten

Partner, jurist, register makelaar en taxateur, en lid NVM BOG

Contact

Vragen of een afspraak maken?

Bereikbaar op werkdagen tussen 9:00 en 17:30 uur

"*" geeft vereiste velden aan

Dit veld is bedoeld voor validatiedoeleinden en moet niet worden gewijzigd.