Vraagprijs
€2.295.000 k.k.
Omschrijving
Tijdloze luxe op een unieke locatie in het Oude Villapark van Vught!
Aan een rustige, lommerrijke laan in het prestigieuze Oude Villapark staat deze tijdloze villa op een markant hoekperceel. Een plek waar privacy, ruimte en natuur samenkomen op korte afstand van de Vughtse Heide, de IJzeren Man en alle voorzieningen die het dagelijks leven comfortabel maken. Het oude Villapark staat bekend om zijn statige vrijstaande villa’s, kindvriendelijke karakter en uitstekende bereikbaarheid van zowel ’s-Hertogenbosch, Tilburg als de Randstad.
De villa is ontworpen door architect Wesemael en is in 2007 met veel aandacht voor detail volledig gemoderniseerd. Het resultaat is een woning met een warm, luxe karakter en een uiterst praktische indeling. Met een royale woonkeuken, een sfeervolle living, vijf slaapkamers, een privacy biedende tuin met niveauverschil, een grote oprit met carport en een inpandige garage biedt deze villa alles wat u van een villa in dit segment mag verwachten.
Algemeen
• Woonoppervlakte: ca. 314 m²
• Inhoud: ca. 1.331 m³
• Overige inpandige ruimte: ca. 44 m²
• Gebouwgebonden buitenruimte: ca. 151 m²
• Perceeloppervlakte: 1.020 m²
Indeling
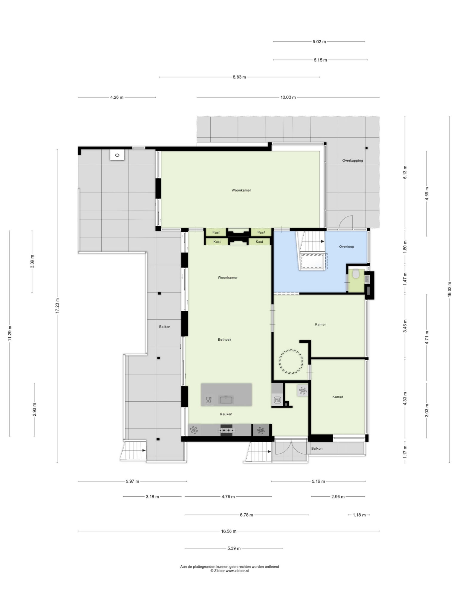
Entree
De verhoogde, overdekte entree verleent toegang tot de ruime ontvangsthal. Hier bevinden zich de garderobe, de toiletruimte en de trap naar de slaapverdieping. De hal biedt tevens toegang tot de woonkeuken, de living en de kantoorruimte.
De natuurstenen vloer met vloerverwarming, welke per zone te regelen is, loopt door in een groot deel van de woning en geeft de hal meteen een warme en uitnodigende uitstraling. Aan de voorzijde ligt een multifunctionele ruimte die zich uitstekend leent voor een lees- of speelhoek. Aan de achterzijde bevindt zich de kantoorruimte, rustig gelegen en met zicht op de tuin.
Woonkeuken
Dubbele houten taatsdeuren leiden naar de royale woonkeuken: een lichte, open ruimte waar wonen, koken en samenzijn op een vanzelfsprekende manier samenkomen. De keuken biedt plaats aan een grote eettafel en een zithoek bij de ingebouwde gashaard.
Meerdere schuifpuien verbinden de ruimte met het brede balkon en de tuin. De moderne keukenopstelling is uitgevoerd in een stijlvol kleurenpalet en voorzien van hoogwaardige apparatuur waaronder een stoomoven, gaskookplaat met oven, afzuigkap, vaatwasser en een Amerikaanse koelkast. Het royale stenen werkblad maakt het geheel compleet. Aangrenzend bevindt zich de praktische bijkeuken.
Living
Grenzend aan de woonkeuken ligt de royale living. Grote raampartijen zorgen voor veel licht en bieden uitzicht op zowel het terras aan de achterzijde als de oprit aan de voorzijde. De houten vloer, de sfeervolle gashaard en de ruime opzet creëren een warme, uitnodigende omgeving voor dagelijkse momenten én bijzondere gelegenheden.
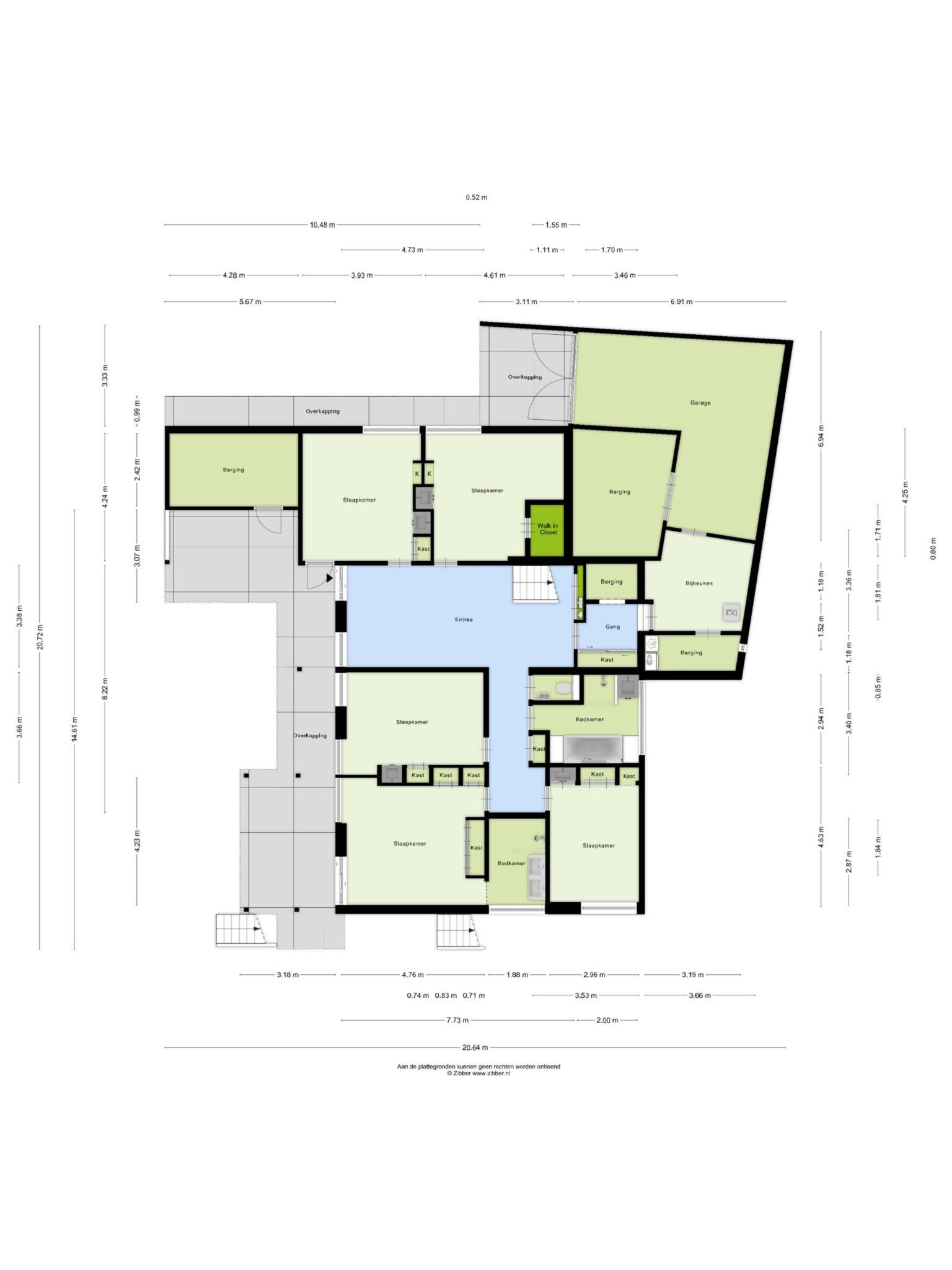
Slaapverdieping
De slaapverdieping ligt deels onder peil, wat zorgt voor een unieke en intieme sfeer. Hier bevinden zich vijf ruime slaapkamers, elk voorzien van een houten vloer, een moderne wastafel en ruime inloop- of inbouwkasten.
De ouderslaapkamer heeft een eigen badkamer met dubbele wastafel en een elegante inloopdouche met regendouchekop en ingebouwde kranen.
De tweede badkamer is uitgerust met een ligbad, douche en wastafel. Op de overloop bevindt zich een separate toiletruimte.
Een flexibel indeelbare ruimte op de overloop kan worden ingericht als fitnessruimte, speelkamer of zithoek. Vanuit deze plek heeft u bovendien toegang tot de achtertuin.
De overloop biedt verder toegang tot meerdere bergruimten, de technische ruimte en de ruime inpandige garage.
Buitenleven
De achtertuin is met zorg ontworpen en volgt de natuurlijke hoogteverschillen van het perceel. Hierdoor ontstaat een speelse, moderne uitstraling. Over de volledige breedte van de woning ligt een groot balkon met diverse zitplekken en een terras, ideaal om de hele dag van de zon te kunnen genieten.
De tuin beschikt over een gazon, volwassen beplanting en een looppad richting de brede oprit. De oprit biedt plaats aan meerdere auto’s en is voorzien van een royale carport met elektrische autopoort. Ook de installatie voor tuinberegening bevindt zich hier.
Kenmerken
Robin Scholten
Partner, jurist, register makelaar en taxateur, en lid NVM BOG