Vraagprijs
€995.000 k.k.
Omschrijving
Op een uitzonderlijk mooie locatie in het buitengebied van Helvoirt, direct aan de rand van Nationaal Park de Loonse en Drunense Duinen, wordt deze recreatiewoning aangeboden. Een bijzondere plek voor wie waarde hecht aan rust, natuur en ruimte.
De bestaande woning ligt op een royaal perceel in een groene, natuurlijke omgeving met veel privacy. Het omliggende landschap vormt een rustig en beschut decor, waar u het buitenleven in zijn meest pure vorm ervaart. Fluitende vogels, een weids gevoel van vrijheid en volop mogelijkheden voor ontspanning en recreatie maken deze locatie uniek.
Bijzonderheden:
– Bestaande recreatiewoning (gebouwd in 2020);
– Gelegen in een groene, bosrijke omgeving;
– Veel privacy en rust.
Algemene informatie:
Woonoppervlakte: 175 m²
Overige inpandige ruimte: 33 m²
Gebouwgebonden buitenruimte: 83 m²
Inhoud: 771 m³
Perceeloppervlakte: circa 7.000 m² (nader in te meten)
Ligging:
Het perceel ligt aan de Guldenberg in Helvoirt, een geliefde en natuurrijke locatie aan de rand van Nationaal Park De Loonse en Drunense Duinen. U woont hier midden in het groen, met uitgestrekte bossen op loop- en fietsafstand. In de directe omgeving bevindt zich bovendien recreatieplas De IJzeren Man – een populaire plek om te wandelen, zwemmen of te ontspannen op een van de gezellige terrassen aan het water. Voor golfliefhebbers ligt de internationaal bekende golfbaan Bernardus eveneens binnen handbereik.
De ligging is bijzonder centraal — tussen Vught, Oisterwijk en Tilburg — waardoor voorzieningen, winkels en horeca altijd binnen bereik zijn, terwijl u tegelijkertijd geniet van de rust en ruimte van het buitenleven. Dankzij de goede bereikbaarheid via de N65 en de nabijheid van uitvalswegen is ook ’s-Hertogenbosch binnen korte tijd te bereiken.
Recreatiewoning:
Indeling
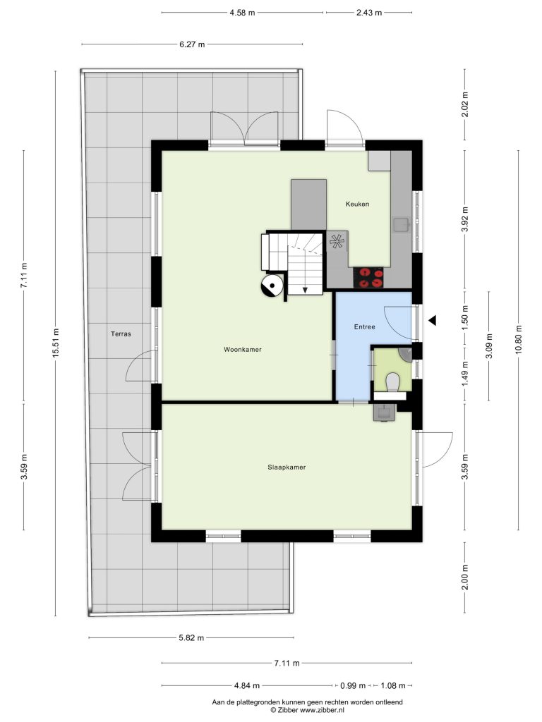
Souterrain
Vanaf de oprit is de woning te betreden via de eerste slaapkamer, de bijkeuken of de garage.
De bijkeuken is praktisch ingericht en voorzien van een inductiekookplaat met vier kookzones, een afzuigkap en een spoelbak. Vanuit hier is er toegang tot een handige opbergruimte met de aansluitingen voor het witgoed, evenals tot de ruime badkamer. De badkamer is uitgerust met een inloopdouche, een ligbad, een toilet, een bidet, dubbele wastafel en een handdoek radiator.
De garage biedt plaats aan één auto en is tevens de locatie van de warmtepomp en de installatie voor de vloerverwarming. De gehele begane grond is afgewerkt met een betegelde vloer.
Begane grond
Op de begane grond bevindt zich de woonkamer, die via twee deuren toegang biedt tot het balkon. De woonkamer is licht en ruim opgezet, beschikt over een elektrische haard en staat in directe verbinding met de keuken. De keuken is uitgerust met een inductiekookplaat met vier kookzones, een vaatwasser, oven, magnetron, koelkast, vriezer en een spoelbak.
Vanuit de woonkamer bereikt u de overloop, waar een separate toiletruimte en een deur naar buiten aanwezig zijn. Daarnaast bevindt zich op deze verdieping een tweede slaapkamer of multifunctionele ruimte, met aan zowel de voor- als achterzijde een deur naar buiten en een eigen wastafel.
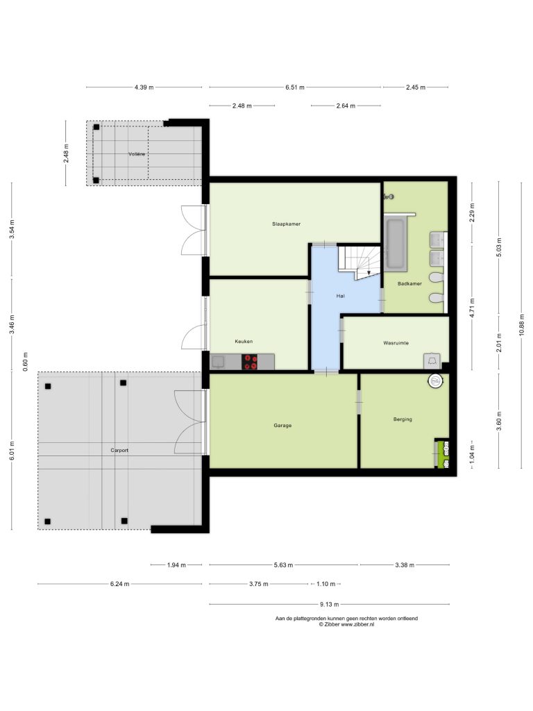
Eerste verdieping
Op de tweede verdieping bevindt zich een tweede badkamer met douche, wastafelmeubel en dakkapel, evenals een derde slaapkamer. Ook deze slaapkamer beschikt over een dakkapel, wat zorgt voor extra lichtinval en een ruimtelijk gevoel.
Verder is de woning voorzien van een carport met ruimte voor twee voertuigen en liggen er 15 zonnepanelen op het dak, wat bijdraagt aan een duurzame energievoorziening. Daarnaast bevindt zich op het perceel een hondenhok, ideaal voor huisdiereigenaren.
Kenmerken
Marjanna Vissers
Partner, register makelaar en taxateur, lid NVM wonen