Vraagprijs
€1.300.000 k.k.
Omschrijving
Soms komt alles samen. Deze vrijstaande woonboerderij aan de Papenvoorden is zo’n plek waar een woondroom werkelijkheid wordt. Met een slaapkamer en badkamer op de begane grond, twee slaapkamers en een tweede badkamer op de verdieping, een sfeervolle werkkamer en een karakteristiek bakhuis met diverse gebruiksmogelijkheden, is dit een woning die zich moeiteloos aanpast aan uw woonwensen. Het geheel wordt omgeven door rust, ruimte en een fraai uitzicht over de landerijen.
Oirschot staat bekend als één van de aantrekkelijkste plaatsen in Brabant met ruim 300 rijks- en gemeentelijke monumenten. In het monumentale centrum zijn vele winkels, restaurants en gezellige terrasjes te vinden. Oirschot is omgeven door groen, in het buitengebied vindt men vele wandel-, fiets en ruiterpaden. Daarnaast bent u binnen no-time op de A58 waardoor de woning ook zeer centraal gelegen is. Openbaar vervoer, scholen en sportverenigingen zijn ook goed bereikbaar.
ALGEMENE INFORMATIE
Bouwjaar: 1890 (oorspronkelijk bouwjaar)
Woonoppervlakte: ca. 254 m²
Inhoud: ca. 1.531 m²
Overig inpandige ruimte: ca. 101 m²
Woonoppervlakte bijgebouw: ca. 58 m²
Gebouw gebonden buitenruimte bijgebouw: ca. 28 m²
Energielabel B
Duurzaamheid: Energielabel C, 18 zonnepanelen
Bijzonderheden:
– De woning is onder architectuur van Louis de Kok verbouwd.
– Er bestaat een mogelijkheid tot het bijkopen van een deel van de weilanden. Onze makelaar vertelt u hier graag meer over.
Indeling:
Bij deze woning starten we graag met een gedeelte van de buitenruimte. De woning is prettig gesitueerd op het perceel met een fijne afstand tot de rustige woonstraat aan de voorzijde. Aan de rechterzijde van de woning is een eigen oprit gelegen met ruimte voor meerdere auto’s. De oprit leidt naar het schop; een overdekte stallingsschuur. Aan de linkerzijde van de woning ligt een toegangspad dat naar de achtertuin voert.
Begane grond
Volgens goed Brabants gebruik bevindt zich de entree aan de achterzijde van de woning. De overdekte entree komt uit in een centrale hal, waar direct de sfeer van de woning voelbaar is. De ruimte is open tot in de nok en afgewerkt met authentieke plavuizen en karaktervolle paneeldeuren. In de hal bevinden zich het toilet, de trapopgang naar de eerste verdieping en diverse vaste kasten.
Vanuit de hal zijn de verschillende leefruimtes toegankelijk, te beginnen met de keuken. Deze ruimte sluit naadloos aan bij het karakter van de woonboerderij en biedt een fraai uitzicht op de achtertuin en de achtergelegen weilanden. De keuken is voorzien van authentieke plavuizen met comfortabele vloerverwarming. De wandopstelling met karakteristiek werkblad, diverse onderkasten, een geïntegreerde spoelbak en een vaatwasser vormen de basis van deze keuken.
Aan de andere zijde bevindt zich de eyecatcher in deze keuken: het AGA fornuis met meerdere ovens, geplaatst in een schouw met geïntegreerde afzuigkap. Een vaste kast biedt plaats aan de koelkast en een deur leidt naar een praktische provisiekast. Dubbele tuindeuren zorgen voor een directe verbinding met de tuin.
Vanuit de keuken leidt een open doorgang naar de woonkamer. Deze ruimte kenmerkt zich door een warme en authentieke sfeer, met een houten vloer, zichtbare balken en ramen met roedeverdeling. De ruimte biedt plaats aan meerdere zitgedeeltes.
Aan de voorzijde ligt de zitkamer, waar tevens de officiële voordeur is gesitueerd. Deze ruimte is voorzien van een authentieke plavuizenvloer met vloerverwarming, een houtkachel en een schouw met vaste kast, waarin de vernieuwde meterkast is verwerkt. Vanuit de zitkamer geven dubbele deuren toegang tot de tuin.
Zoals dat hoort bij een woonboerderij biedt ook deze woning een praktische kelder, bereikbaar vanuit de woonkamer. Boven de kelder bevindt zich de opkamer, momenteel ingericht als werkkamer. Deze ruimte is voorzien van een houten vloer en biedt een mooi uitzicht op de tuin.
Terug in de hal is de slaapkamer op de begane grond bereikbaar. Deze ruime kamer is voorzien van een houten vloer en vaste inbouwkasten. De aangrenzende badkamer ensuite is compleet uitgevoerd met een ligbad, inloopdouche met regendouche, dubbele wastafel en een toilet. De wanden zijn deels betegeld en deels voorzien van stucwerk. Een elektrische designradiator zorgt voor extra warmte naast de vloerverwarming.
Tot slot is er de praktische wasruimte, voorzien van aansluitingen voor de wasmachine en droger, een uitstortgootsteen en een garderobe. Ook hier ligt een plavuizenvloer en is er een loopdeur direct naar buiten. Vanuit deze ruimte is inpandig de garage/berging te bereiken, hierover later meer.
Eerste verdieping
Een vaste trap leidt naar de eerste verdieping, waar de overloop direct een ruimtelijk gevoel geeft dankzij het zicht tot in de nok en de open verbinding met de centrale hal op de begane grond. De houten vloer draagt bij aan de warme en authentieke uitstraling van deze verdieping.
Momenteel bevinden zich twee slaapkamers en een badkamer op deze verdieping. Door creatief om te gaan met de beschikbare ruimte kunnen hier eventueel meerdere (slaap)kamers gerealiseerd worden; afhankelijk van uw eigen woonwensen.
Een loopdeur leidt naar de eerste slaapkamer op deze verdieping. Deze kamer is ruim van opzet en voorzien van een dakraam, waardoor er prettig licht binnenvalt. Aansluitend bevindt zich de badkamer en een vaste bergkast met daarin de c.v.-ketel.
De badkamer is uitgevoerd met een douche, wastafel met meubel en toilet. De ruimte is deels betegeld en beschikt over een dakraam voor natuurlijke ventilatie en lichtinval. Een designradiator zorgt voor extra comfort.
Via een doorloop vanuit deze slaapkamer is de tweede slaapkamer van deze etage bereikbaar. Deze riante kamer is een volwaardige (ouder)slaapkamer en beschikt over een prachtige houten vloer. De ramen met roedeverdeling laten natuurlijk daglicht binnen vallen.
Buiten
Een buitenruimte als deze mag niet ontbreken. De achtertuin biedt een vrij uitzicht over de weilanden. Het royale perceel zorgt ervoor dat er altijd een fijne plek te vinden is om van het buitenleven te genieten.
Direct achter de woning bevindt zich een ruim terras, ideaal voor meerdere zitplekken. Het perceel loopt door tot aan de sloot, die samen met de bomenrij een natuurlijke afscheiding vormt. In de tuin zijn daarnaast een grondwaterput en een karakteristieke wensput aanwezig.
Achter op het perceel staat het zogenoemde schop, een overkapte houten schuur met ruimte voor het stallen van meerdere auto’s en bijvoorbeeld hout of gereedschap. Op het dak zijn 18 zonnepanelen geplaatst.
Inpandig in de woonboerderij is een grote bergruimte/garage aanwezig. Deze ruimte beschikt over een loopdeur richting de achtertuin en dubbele deuren richting de voorzijde van de woning. Doordat deze ruimte niet is verdeeld in twee verdiepingen, is hier het zicht tot in de nok behouden en is de binnenzijde van de rieten kap zichtbaar. Dit maakt het een bijzonder karaktervolle en praktische ruimte, ideaal voor hobby of opslag.
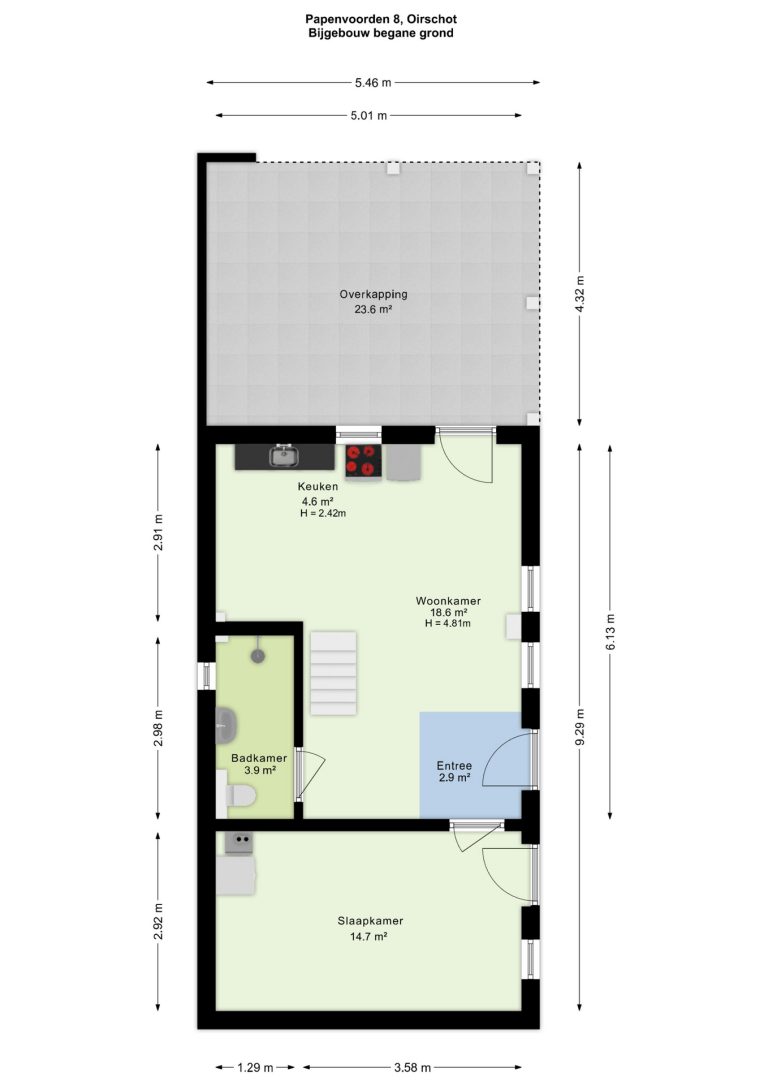
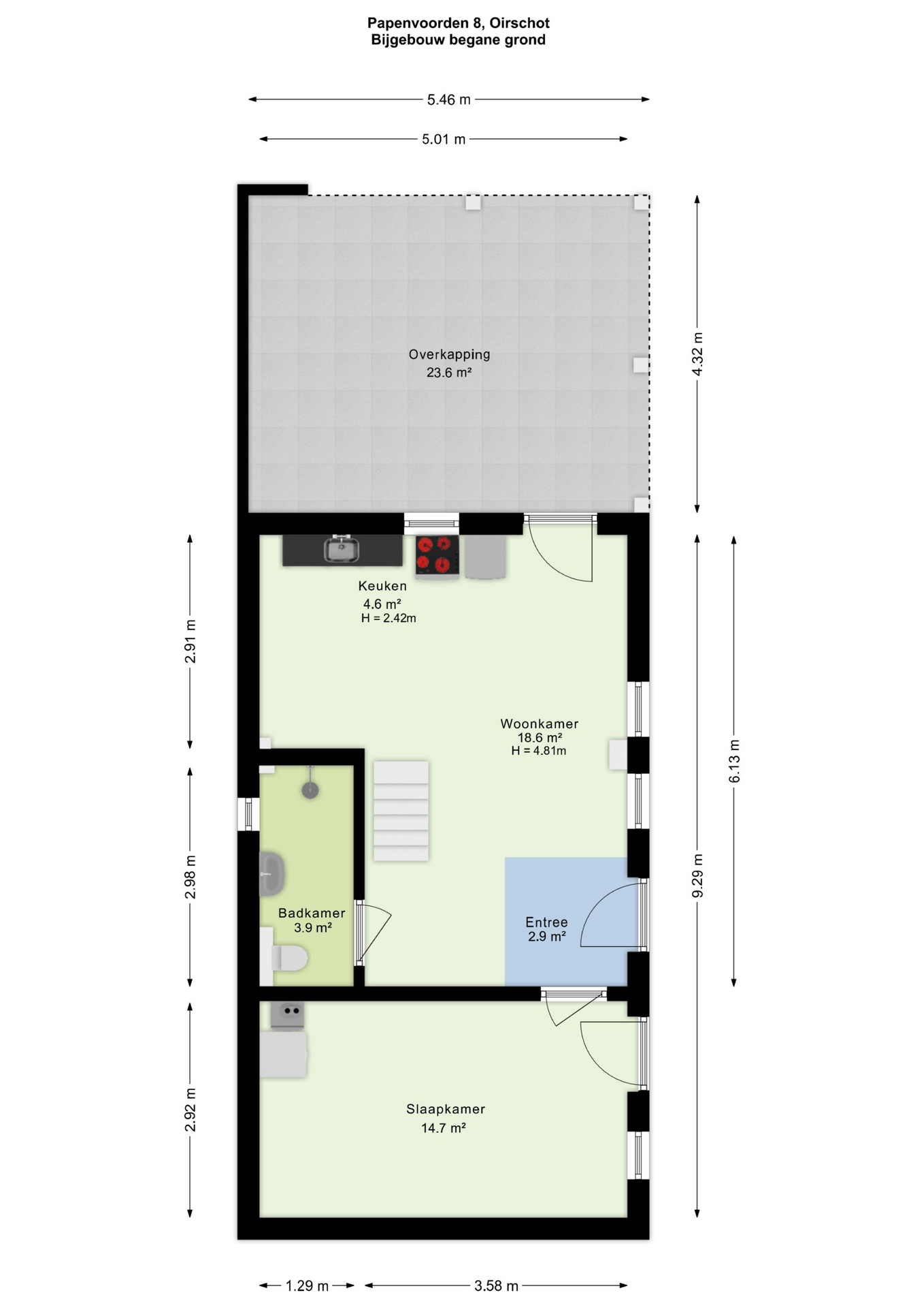
Verder is in de tuin het charmante bakhuis gelegen. Dit bijgebouw beschikt het over een knusse leefruimte met zithoek en eethoek, een keukenblok met spoelbak en losse apparatuur, een badkamer met douche en toilet, en een slaapkamer. Op de verdieping is een tweede (slaap)kamer aanwezig. Dit bakhuis is voorzien van een eigen cv ketel en een wasmachineaansluiting, beide gesitueerd in de slaapkamer op de begane grond. De overkapping met aansluitend terras maakt het geheel compleet.
Kenmerken
Ilse Coehorst
Partner, register makelaar en lid NVM wonen