Vraagprijs
€1.695.000 k.k.
Omschrijving
Vrijstaande villa op toplocatie, waar rust, ruimte en architectuur samenkomen.
In een van de mooiste lanen van Moergestel (gemeente Oisterwijk), omringd door groen en karaktervolle villa’s, bereikt u -via een oprijlaan- deze vrijstaande villa met verrassende architectuur van architect Marinus Wolfs. De villa is ontworpen met oog voor licht en leefcomfort; de afwerking is hoogwaardig, met gebruik van duurzame materialen en tijdloze details.
Een plek waar ruimte en kwaliteit moeiteloos in balans zijn. Hier woont u vrij, met alle gemakken van het dorpshart én de natuur vlakbij.
Moergestel heeft de charme van een echt Brabants dorp met een actief verenigingsleven, lokale evenementen en een sterk gevoel van verbondenheid. Rustig en groen, met een hart vol leven. Waar mensen elkaar nog groeten, kinderen veilig buitenspelen en de natuur letterlijk om de hoek begint. Alles wat u nodig heeft ligt binnen handbereik, van goede scholen, winkels tot gezellige horeca.
U profiteert van de nabijheid van Oisterwijk en Tilburg, met een breed aanbod aan winkels, cultuur en gastronomie.
De villa ligt heel centraal gelegen. Via de A58 bent u heel snel in Tilburg, Eindhoven of Den Bosch. En tegelijkertijd is het optimaal genieten van het buitenleven en de groene omgeving. Vrij wonen in een parkachtige omgeving met brede lanen, karaktervolle woningen en uitgestrekte natuurgebieden, zoals de Oisterwijkse Bossen en Vennen op fietsafstand.
Van Rijckevorsellaan 8 ligt in een geliefde, lommerrijke villawijk nabij het centrum van Moergestel (gemeente Oisterwijk). Een ideale locatie voor wie houdt van rust, maar niets wil missen van het Brabantse leven.
Graag nodigen wij serieuze gegadigden, op afspraak, uit voor een bezichtiging om de rust en ruimte zelf te ervaren!
ALGEMENE INFORMATIE
Bouwjaar:
-oorspronkelijk 1965
-2003 woning verbouwd en gemoderniseerd
-1996 de separate studio/praktijk uitgebouwd
Inhoud: ca. 1.796 m³
Woonoppervlakte: ca. 452 m²
Overige inpandige ruimte: ca. 31 m²
Gebouw gebonden buitenruimte: ca. 69 m²
Externe bergruimte: ca. 12 m²
Perceeloppervlakte: 2.310 m²
Verwarming: c.v.-ketel (Nefit HR, 2018)
Isolatie: vloerisolatie (bij)keuken, muurisolatie deels nageïsoleerd, dakisolatie (bouwjaar), grotendeels HR++ glas (2003)
Energielabel: B
INDELING
Begane grond
Uitnodigende entree naar de hal met garderobe, inbouwkast en toiletruimte. De toiletruimte is geheel met marmer betegeld en voorzien van een wandcloset, fontein en ventilatie.
Vanuit de hal doorgang naar de sfeervolle eetkamer met een fraaie, eikenhouten vloer en een open trapopgang naar de eerste verdieping.
De eethoek bevindt zich bij de stijlvolle, modern vormgegeven, gashaard; hier kunt u heerlijk borrelen en tafelen met familie en vrienden. Aan de achterzijde geeft een schuifpui toegang tot het overdekte terras en de tuin.
Via een toog is de woonkamer bereikbaar met een panoramisch zicht op de verzorgde tuin en de bosrijke omgeving. Deze kamer heeft eveneens een houten vloer; het zitgedeelte is rondom de haard gegroepeerd.
Grote raampartijen zorgen voor een natuurlijke verbinding tussen binnen en buiten, terwijl de ruimtelijke indeling uitnodigt tot samen zijn.
Aan de achterzijde van de villa bevindt zich nog een grote kamer met een houten vloer, nu in gebruik als muziekkamer. Openslaande deuren leiden naar een terras en de tuin.
Aansluitend aan de eetkamer is de royale leefkeuken, voorzien van een hardstenen vloer. De praktische inrichting met een kookeiland, wandopstelling en aanrecht maakt dat u hier uitgebreid kunt koken en leven. Er is diverse inbouwapparatuur aanwezig (2003): een 5 pits gaskookplaat (incl. wokbrander) met rvs-afzuigschouw, stoomoven, bordenwarmer, oven, vaatwasser en twee koelkasten. Een schuifpui geeft direct toegang tot het overdekte terras en het buitenleven.
Vanuit de keuken en bijkeukenruimte is een zij-entree naar de voorzijde van de woning en de oprit. Bij de entree is een garderobe en een meterkast.
Naast de bijkeuken bevindt zich nog een ruime studeer-/werkkamer met veel kastruimte en een houten vloer. Ook deze kamer kenmerkt zich door een aangename daglichtinval en mooi uitzicht op de tuin en de hoofdentree van de woning.
Eerste verdieping met oostvleugel
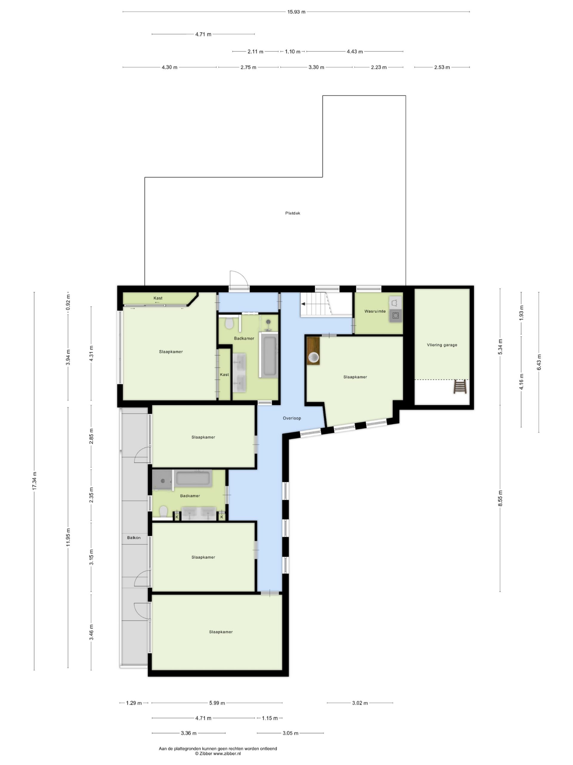
Op de eerste verdieping (betonnen verdiepingsvloer) van de villa bevinden zich twee slaapkamers, een badkamer en een wasruimte; in de oostvleugel (houten verdiepingsvloer) nog drie slaapkamers en een tweede badkamer. Totaal vijf kamers en twee badkamers.
Vanaf de overloop leidt een gang naar de master bedroom aan de achterzijde van de villa; het raam is voorzien van -elektrisch bedienbare- buitenjaloezieën. Aangrenzend een badkamer in neutrale kleurstelling met douche, ligbad, twee wastafels in wandmeubel, designradiator en wandcloset. De andere slaapkamer is aan de voorzijde gelegen.
In de wasruimte op de verdieping zijn aansluitingen voor was- en droogapparatuur; een wandkast biedt extra praktische bergruimte.
De drie slaapkamers in de oostvleugel hebben ieder een loopdeur naar het balkon waarvan het ontwerp is geïnspireerd op elementen uit de zeilwereld. De badkamer is geheel betegeld en heeft een fraaie, teakhouten scheepsvloer, ligbad, douche, twee wastafels in wandmeubel en een wandcloset.
Garage
De garage heeft houten openslaande deuren aan de zijde van de oprit; aan de achterzijde is een loopdeur naar de tuin. De ruimte is voorzien van elektra en verwarming; verder een vliering met veel praktische opslag- en bergruimte.
Separate studio
De royale studio heeft een separate entree vanaf de oprit en is verdeeld in vier verschillende ruimtes.
Dit maakt deze multifunctionele studio uitermate geschikt voor praktijk of kantoor aan huis, yogastudio, coaching ruimte, mantelzorgwoning, au-pairsstudio, hobby-, fitness- of wellnessruimte.
Via de entree/hal met garderobe komt men in een ruimte gelegen aan de voorzijde; hier zijn nu drie werkplekken aanwezig. In de hal is een toiletruimte en meterkast. De toiletruimte heeft een staand closet en fontein.
Aansluitend aan deze ruimte bevindt zich een (archief)ruimte. Ook is een pantry met een klein keukenblok en koelkast aanwezig.
Vervolgens is er een tussenruimte met vier werkplekken. En aan de achterzijde is een mooie werkruimte met nu twee/drie werkplekken en een prachtig uitzicht op de tuin.
In een separate technische ruimte bevinden zich de opstelling van de c.v. ketel en boiler.
Uiteraard bieden de diverse ruimtes diverse mogelijkheden qua indeling!
Buitenleven
De verzorgde, zonnige en privacybiedende tuin heeft een gazon, diverse terrassen en is omringd door borders met volwassen beplanting en diverse bomen.
Onder het overdekte terras bij de villa kunt u heerlijk genieten in meerdere seizoenen door de beschutte ligging en de terrasverwarming. Verder in de tuin is een houten tuinhuis voor het opbergen van (tuin)gereedschap, tuinmeubilair en opslag van hout. Op het terrein is het mogelijk een separate mantelzorgwoning te realiseren!
Aan de achterzijde van het perceel bereikt u -via een houten bruggetje- het achterliggende bos voor een ontspannende wandeling of om uw hond uit te laten.
Op het voorterrein is ruime parkeergelegenheid voor meerdere auto’s en een carport met twee parkeerplaatsen.
Kenmerken
Raymond van der Heijden
Partner, jurist, register makelaar, lid NVM wonen en AOG